1035000 €
Sous compromis
PARIS
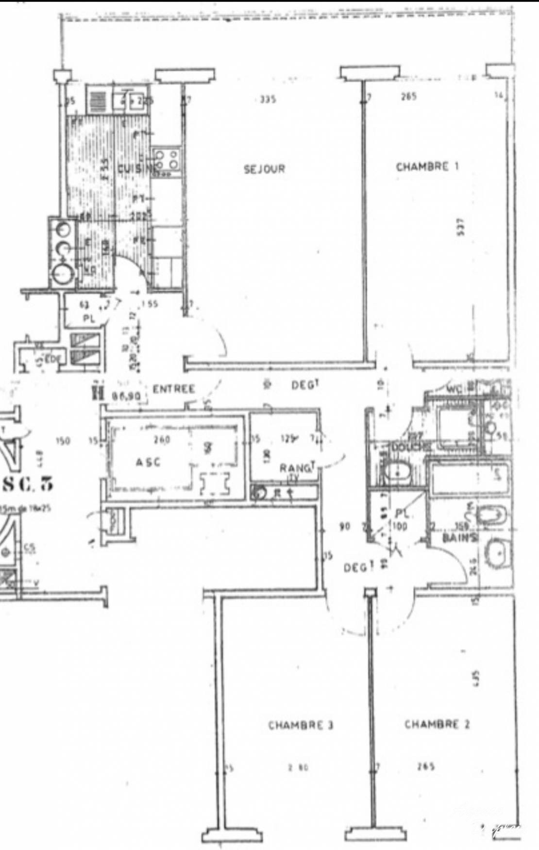
Descriptif: Parmi ses offres, l'AGENCE DUPLEIX ,spécialiste du quartier depuis 28 ans, vous propose un très beau 4 Pièces avec balcon donnant entièrement sur jardin. L'appartement est exposé plein sud et n'a pas de vis à vis. Situé au 2ème étage avec ascenseur d'un bel immeuble des années 70, il se compose de: une entrée avec placard, une cuisine, un salon, un dégagement avec 2 dressings, 3 chambres, une salle d'eau, une salle de bains et des wc séparés. Une cave est vendue avec l'appartement. Possibilité d'acquérir un parking à 30000€.
Surface appartement: 87m2 et balcon: 15m2. Eau chaude et chauffage collectifs.
Montant moyen annuel de la quote-part, à la charge du vendeur, du budget prévisionnel correspondant aux dépenses courantes (art 14-1 loi n°65-557 du 10/07/65) 3500 € .Taxe Foncière 2024: 2003 €.
Diagnostic du 08//07/2025 (Montant estimé des dépenses annuelles d'énergie pour un usage standard : 1020€ à 1430€. Année de référence des prix de l'énergie utilisés pour établir cette estimation: 2021 , 2022, 2023)
Honoraires d'agence à la charge de l'acquéreur de 4%ttc, soit un montant de 40000€ ttc. Prix de vente honoraires exclus de 995 000€.
Bien soumis au statut de la copropriété. Nombre de lots: 187. Procédure en cours.
Les informations sur les risques auxquels ce bien est exposé sont disponibles sur le site Géorisques : www.georisques.gouv.frv
Date de réalisation du DPE : 08/07/2025
Montant estimé des dépenses annuelles d’énergie pour un usage standard : entre 1020€ et 1430€ par an
Prix moyens des énergies indexés au 2022 (abonnements compris)
